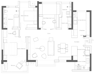
建筑面积140平米。使用面积132㎡的新房,户型规整实用。拆除部分非承重墙,引进室外光线,让室内变得通透敞亮。阳台纳入室内扩大使用面积,同时规划出多功能房,集手工、办公、休闲、娱乐、收纳一体。25cm高的地台设计,休闲储物两不误,外表看似不高收拾一下还是能放不少东西的。拆除原有隔断墙将空间打通,黑框玻璃移门大方通透,隔断空间又不影响采光。内部纱帘的介入,虚实层次中透露出朦胧美。













上一篇: 简约原木风纽宾凯四居室
下一篇: 简约风纯水岸两居室
装修预算数据由历史服务业主装修数据及各大城市装修行业数据经过大数据时时分析计算。