欢迎访问 红杉树装饰官网 官网
首页>家装案例

【红杉树装饰】月亮湾-三居室-简约美式

发布时间:2019-07-19 11:29:18  查看人数:147  分享到:

    业主需求:希望小家可以简单中保留一份从容与自在,忙碌的工作之余能让身心得到最后的休憩。设计理念:简约、沉稳是本案设计的核心理念。美式简约风格不需要太多的花样和繁杂的色系,而是主张纯朴简约,强调一种心神的回归。美式简约所具有的贵气感、自在感与情调感,构成了具有新流行文化意味的生活方式。业主可以在快节奏的忙碌之后,回到属于自己的一方天地


案例信息

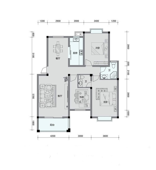
  • 案例面积:107㎡
  • 案例户型:三居室
  • 所在楼盘:大华锦绣时代
  • 案例风格:美式

案例设计师

官方微信 扫码关注,领取装修设计案例 报价