欢迎访问
红杉树装饰官网 官网
一套80平米的小两居室的美式风格装修案例,设计师针对屋主的喜好,设计出了这样简约的美式风格,特别是餐厅中的卡座设计,让屋主非常满意,下面一起看看。

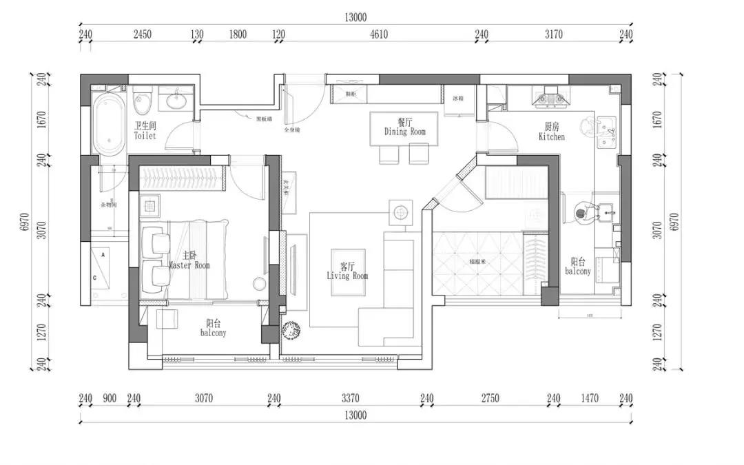
平面布置图

净白的客厅中,电视墙以独特的网格造型,搭配黑色的实木电视柜、茶几,一套舒适的布艺沙发温馨简约,整体轻松自然。

电视墙一侧摆一盆琴叶榕,配合电视柜上的金属摆饰,显得清新而又精致。

舒适的米白色布艺沙发,布置上素雅的蓝色抱枕,沙发墙再挂一幅抽象的黑白蓝装饰画,舒适优雅。
餐厅

沙发墙侧边的墙体斜着开了扇门,这边就是餐厅区域,搭配显得紧凑而舒适。

餐厅中的卡座及顶部都是实用的储物柜,在紧凑的面积下,利用好每一处的空间显得尤其的重要。

餐边柜则是摆置在电视墙侧边,同时还能作为端景台,布置上精致的装饰品,显得格外的雅致。
走廊

走廊装了一面黑板墙,画上自己喜欢的图案,在洁白的空间里透露出文艺气息。
卧室

卧室在蓝白调的基础上,搭配一套浅灰色的床单,白色的玻璃推拉门,让空间明亮而端庄。

靠窗位置再摆上一套休闲座椅,坐在这里看看书放松放松,自然又轻松。
厨房

经典黑白搭配的厨房,彰显时尚简约的格调。
阳台

厨房旁边的生活阳台,保持了一致的黑白配格调,摆上洗衣机与洗手盆,让不起眼的角落也充满了文艺精致的气息。
卫生间
