欢迎访问 红杉树装饰官网 官网
首页>家装案例

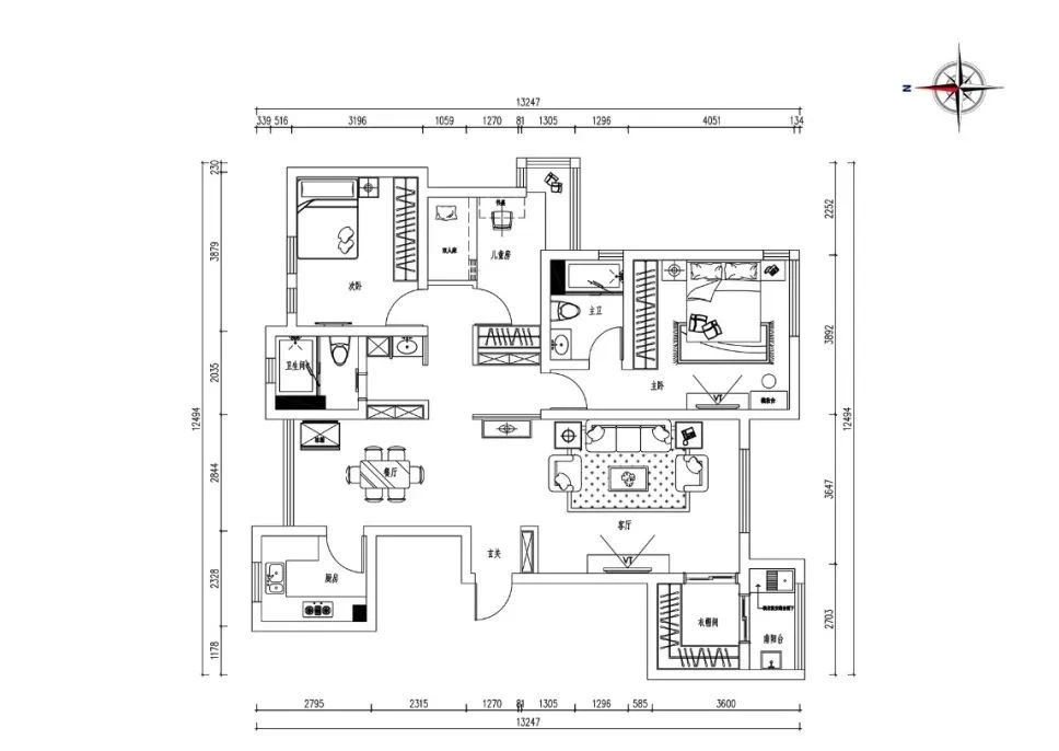
【红杉树装饰】140㎡轻复古北欧风,阳台一角改造衣帽间

发布时间:2019-07-19 11:29:18  查看人数:156  分享到:


案例信息

  • 案例面积:140㎡
  • 案例户型:四居室
  • 所在楼盘:百瑞景中央生活区(一期)
  • 案例风格:现代简约

案例设计师

官方微信 扫码关注,领取装修设计案例 报价