欢迎访问 红杉树装饰官网 官网
首页>家装案例

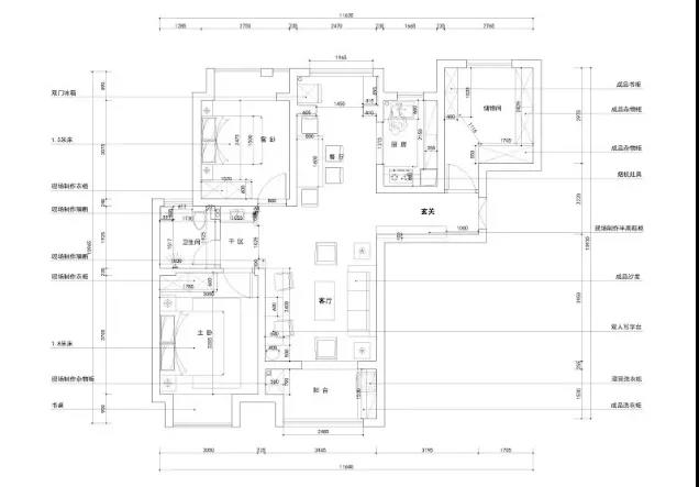
【红杉树装饰】110㎡清新北欧风格装修,简单不失格调!

发布时间:2019-07-19 11:29:18  查看人数:214  分享到:


案例信息

  • 案例面积:110㎡
  • 案例户型:三居室
  • 所在楼盘:新华西美林公馆
  • 案例风格:北欧

案例设计师

官方微信 扫码关注,领取装修设计案例 报价