欢迎访问
红杉树装饰官网 官网
本案整个空间在色系上选择灰蓝色与白色作为背景色,棕色与灰色为主体色,蓝色和黄色作为辅助,适当的金色点缀,以此定格简约北欧风。
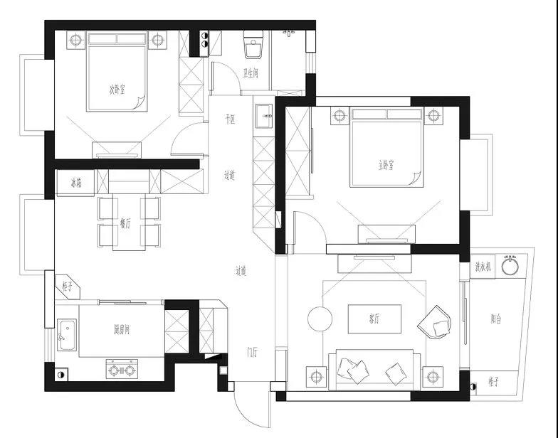
面积:110㎡
户型:两居
风格:北欧

平面图

▲ 入户通过白色的门套与同色踢脚线衔接于墙体,使每个空间都得以连贯。

▲ 利用一深一浅的蓝色,这组相色系作为整体的配角色,打破灰色沙发带来的沉闷感。

▲ 堂前两幅挂画,些许水墨诗意,生活亦可处处皆诗意。

▲ 光线透过黄色的窗帘,温暖了略冷的基调,由着木色元素贯穿全局。

▲ 电视背景墙采用切片对称的方式,塑造立面的丰富层次。

▲ 原木色与灰色硬包结合,通过黑色金属条收口,三种材质的拼接及配比,得以让这一平面巧妙融合为一体。

▲ 一套木质餐椅,明晰的纹理,整洁富有质感。

▲ 木质为大面积的储物柜无声润色,满足生活需求之时,撕下了北欧风被冠“性冷淡”的标签。

▲ 黑白灰+木色的经典组合,运用于不同的材质上,板材、瓷砖、不锈钢、石英石,形成了简洁的厨房空间。

▲ 主卧空间是作为父母居住使用,没有复杂的装饰,延续外部的整体色调,柔和色彩与深木色调和,营造出舒适的休息环境。

▲ 次卧,浅灰色硬包,在金色不锈钢条之间更显质感。

▲ 两侧吊灯垂落而下,不需要浮夸的样式,只余下静谧宁静。

▲ 卫生间墙面满铺瓷砖,美缝勾勒线条层次。干湿分离的设计,也保证了耐用性和安全性。