本案是一套面积为115平米的三居室,一家四口人居住,女主人是一位全职妈妈,每天每家人烹饪,觉得厨房较小;她还希望有一张大大的餐桌,既可以享受美味的每一餐,还可以和孩子们一起做手工......于是,通过屋主与设计师的同共努力 ,携清风与星辉入室,完成这不断在成长和变幻的家。

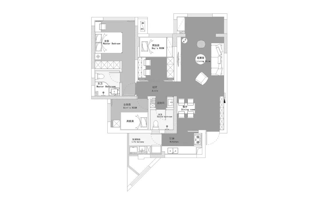
▲平面布局图

客厅作为空间交互场所,利用细腻缜密的可定木饰面作为沙发和电视墙的背景过渡。冷一分则素,暖一分则俗,明媚宁静融合出空间的交互对话,还原了一种灿若星辉的生活本味。

打通客厅与阳台,增加了客厅的使用面积,也开阔了整个空间的视野。

沙发背景以白色与木饰面板拼接,搭配米白色布艺沙发和自然木纹茶几,配比合理,自然纯净,整个空间也充满呼吸感。

关注空间的灵动性和延展感,客餐厅采取一体化的设计,巧克力棕延伸整个顶面,就像一条顺滑的丝带,给空间无限亲昵与甜蜜感。

铺设地暖后为达到更好的采暖效果,选择了传热性能更好的地砖。咖色麻棉地毯,天然舒适。

沙发背景的装饰简洁而有深意,为心灵打开了一扇窗户。绿植的点缀,增添了自然活力。

从入户看客餐厅,灰色、白色和木色的搭配,呈现出自然、优雅、舒适的空间氛围。

餐厅是满含情感和温度的一隅,留白的墙体搭配零星灯光以点与线的层次递进。除却点缀一家人围桌而食的美好记忆,也给予更多孩子思考、动手、玩乐的生活乐趣。

扩宽后的次卧门和厨房门,换成舒张通透的玻璃材质,形成客餐厅过道利落贯通的气氛,视线一览无遗。

非常自然素雅的卧室空间,衣柜与墙体都是白色,明快纯粹。通过木色家具和咖色窗帘给室内带来温暖舒适感。

床头柜、床和梳妆台采用统一的木色,简简单单,自然美好。

扩大后的厨房整洁而实用。居家烟火气的温馨写意,在此空间徐徐弥漫着。

女儿房由于面积的限制,主要以软装做为空间的“调节者”,来勾勒出空间丰富的层次感。一盏云朵灯,交融着妹妹的笑与梦。

男孩房整体布局呈U型状,选择储物和寝居功能为一体的榻榻米形式,与整体衣柜形成一个灵动活泼的蓝色整合体,美观且实用。


卫生间干区外移,提高使用效率。使用长虹玻璃与过道空间进行分隔,阻隔水气的同时也更美观。