一套建筑面积114平米的现代简约风三居室案例,设计师利用墙面空间来做了充分的收纳设计,虽然没有入户走廊,但柜子从入户门一直延伸到了客厅电视背景墙,可以说是实用而又美观。

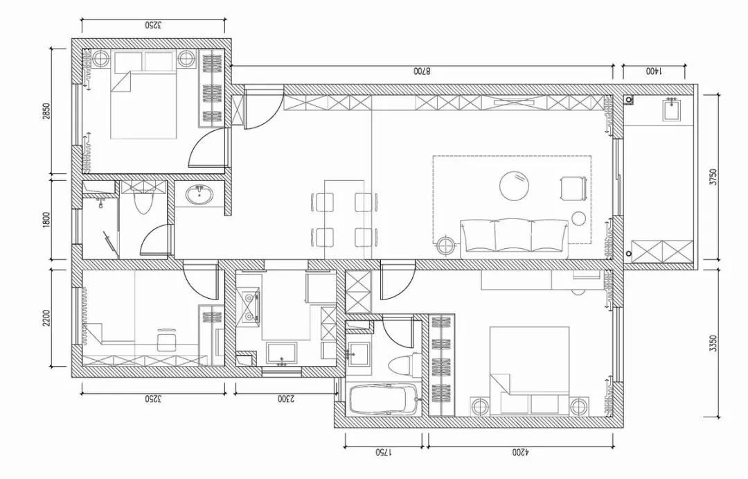
平面布置图

入户没有玄关的户型,在入户门的一侧做了到顶鞋柜,中间留空摆放绿植、杂物。另一侧的墙面也做了柜子,底部留空加上藏光,方便日常使用。

深沉木色的餐桌椅和柜子中留出的书架区域相互呼应,餐厅的灯具设计得的非常的有趣,动感的造型让餐厅变得更加写意悠闲。

客厅处电视被包含在了柜子当中,水墨蓝的沙发上摆放灰、蓝和棕黄色的抱枕,增加层次和跳跃性,搭配茶镜台面的茶几,让人感觉简单而又端庄。

主卧室的硬包床头背景墙和软包床头靠背结合,再加上射灯和床头灯带来的柔和灯光,让卧室显得更加温馨和舒适。

以床为中心,左右两侧做了对称的设计,更显端庄感。白色的家具和咖色的背景墙结合,简单而又大方。

在卧室的另一侧是做了到顶的柜子,床尾也摆放了斗柜,这样的设计能够保证卧室内部的充足收纳空间,避免东西放不下。

次卧的设计会偏于素雅一些,墙面刷成了浅灰色,搭配同样色系的床品和金属质感的台灯,干净清爽的视觉让人感觉身心舒畅。

儿童房设计成了榻榻米床加上书桌、衣柜的组合式设计,用书桌来代替床头柜,方便孩子读书和学习。

床头两侧的床头柜和床都是做旧款式的,给这个素雅的次卧增添了一些古色古香,避免整个卧室显得太过单调、乏味。