建筑面积100平米的简约风三居室案例,设计师以无沙发背景墙、开放式厨房、打通客厅阳台的设计为核心,做出了这样的开放式布局,再加上绿植元素的运用、搭配,让人感觉惬意而又轻松。

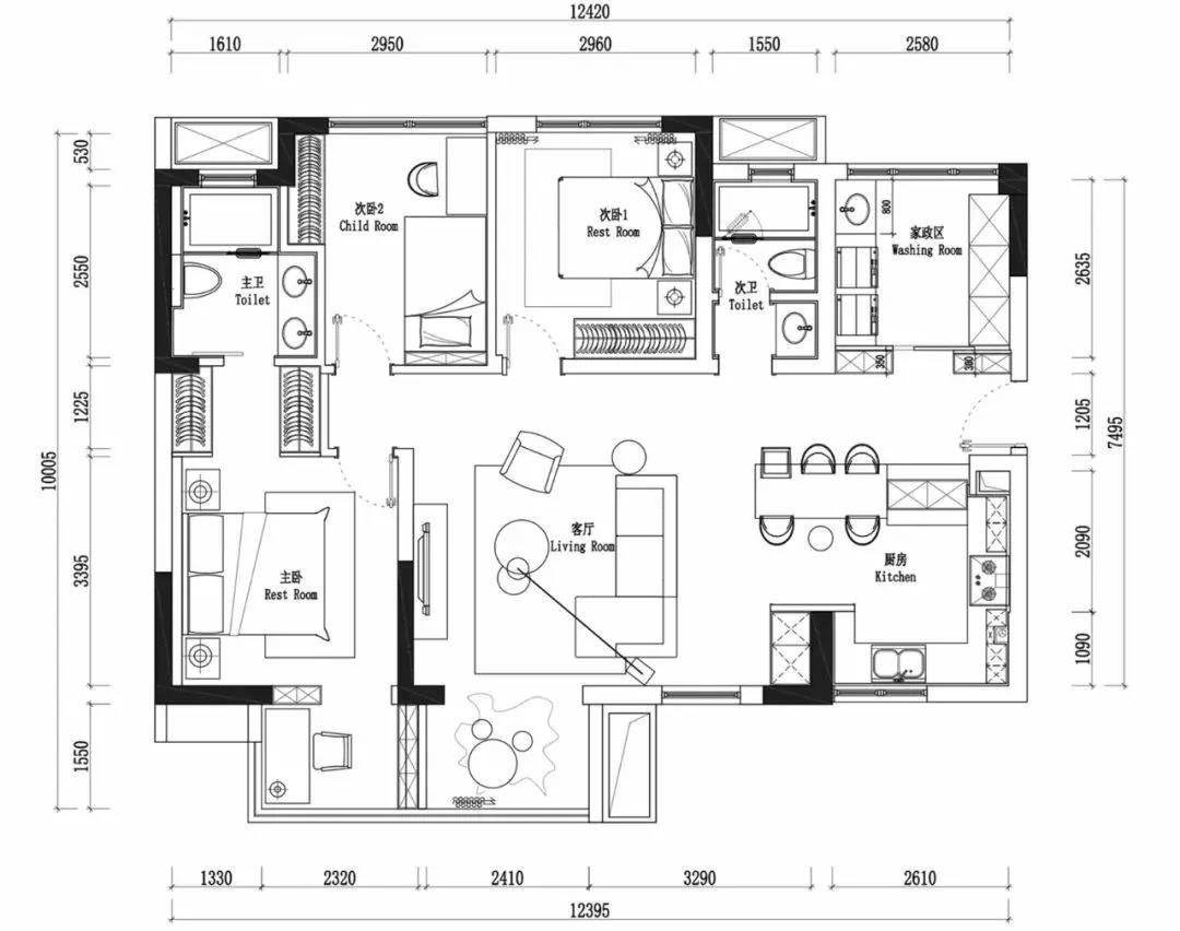
平面布局图

入户的玄关走廊和开放式的餐厨连在一起,在餐厨的另一侧做了到顶的柜子,大理石台面和金属吊灯的设计,让餐厅显得格外精致、优雅。

餐桌椅是摆放在了厨房延伸的操作台边上,厨房内部是U字型的布局,用集成灶来代替抽油烟机加灶台的组合,可以让顶部多做一些吊柜。

在餐桌椅的侧方还做了一面黑板墙,可以划分餐厅和厨房空间。客厅和餐厅直接没有做隔断,浅灰色与白色作为主体,让人感觉轻松而又舒适。

客厅沙发的侧面做了创意的时钟造型,波普风的地毯上是简单个性的家具布置,整体给人以简洁明快的氛围感。

客厅和阳台之间也是连通的,阳台的中间摆放了一个创意的椅子,墙面铺贴绿植壁纸,另一侧就种满了绿植,显得格外的自然清新。

主卧的空间比较大,暖黄色的墙面,顶部吊顶内还做了藏光,非常的大气。卧室有着一个小阳台,设计师在这里布置了一个书房,满足屋主的使用需求。

儿童房的空间就会更迷你一些,孔雀蓝的墙面上做了云朵的造型,靠窗铺上地毯和做个小帐篷,也让孩子多个玩耍的空间。

在入户玄关的侧面是有着一个独立的洗衣房,洗衣机、烘干机和柜子的结合,移动小推车上还有着方便熨烫衣服的设计。

卫生间整体以白色的大理石墙地砖为基调,浴室柜和镜柜之间做了花砖来进行装饰,双洗手盆的设计也方便屋主一家日常的使用。