欢迎访问 红杉树装饰官网 官网
一分钟了解装修
家装知识
在建工地
咨询热线: 19926530442
点击报价
首页
臻品套餐
别墅奢品
旧房改造
精品软装
家装案例
精品案例
VR案例
设计团队
装修直通车
优惠资讯
家装攻略
选材知识
智能报价
在建工地
关于我们
联系我们
首页
>
家装案例
>
精品案例
【红杉树装饰】现代风格 ,多元碰撞制造出了意想不到的惊喜!
发布时间:2019-07-19 11:29:18 查看人数:1680 分享到:
提交手机号
上一篇:
【红杉树装饰】简单质朴的舒适感
下一篇:
【红杉树装饰】85㎡简约北欧风格装修,餐边柜收纳实用
相关风格推荐
【红杉树装饰】120平,活泼跳跃的软装搭配,温馨又惬意
地中海05
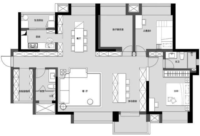
案例信息
案例面积:
112㎡
案例户型:
三居室
所在楼盘:
案例风格:
轻奢
案例设计师
查看TA的主页
已有
20
人预约TA
在线咨询
免费申请设计
家装案例推荐
查看更多
【红杉树装饰】115㎡日式简约北欧风,迷人的清新
查看详情
【红杉树装饰】90㎡北欧风格小户型,没阳台做个地台也不错!
查看详情
光谷新世界新中式风格
查看详情
【红杉树装饰】120㎡现代风格,电视墙收纳柜简约不简单!
查看详情
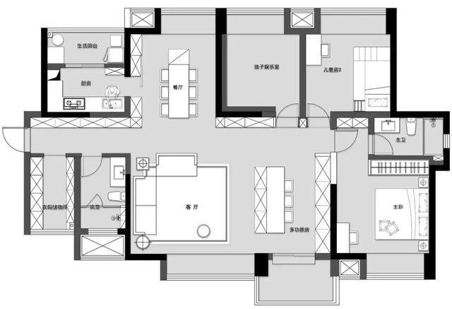
案例信息
案例面积:
112㎡
案例户型:
三居室
所在楼盘:
案例风格:
轻奢
案例设计师
查看TA的主页
已有
20
人预约TA
在线咨询
免费申请设计
官方微信
扫码关注,领取装修设计案例
报价
1室
2室
3室
4室
5室
1厅
2厅
3厅
1厨
2厨
3厨
1卫生间
2卫生间
3卫生间
1阳台
2阳台
3阳台