欢迎访问 红杉树装饰官网 官网
首页>家装案例>精品案例

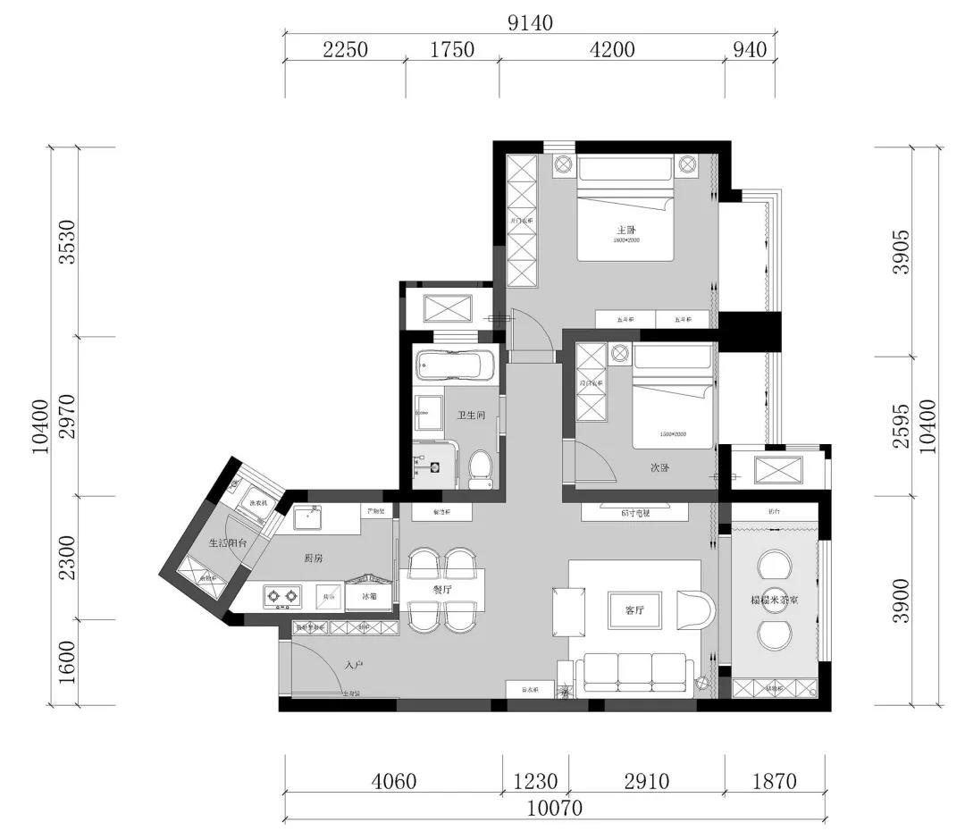
【红杉树装饰】85㎡现代美式风格新房装修,拼色线框背景墙的成熟魅力

发布时间:2019-07-19 11:29:18  查看人数:1636  分享到:


案例信息

  • 案例面积:85㎡
  • 案例户型:二居室
  • 所在楼盘:风华天城祺善坊
  • 案例风格:现代简约

案例设计师

官方微信 扫码关注,领取装修设计案例 报价