一套89平北欧风三居室装修案例,全屋以清爽的原木风为主,搭配明黄色做点缀,很好的装饰了这个家,客厅的大飘窗也很有创意,让人耳目一新。

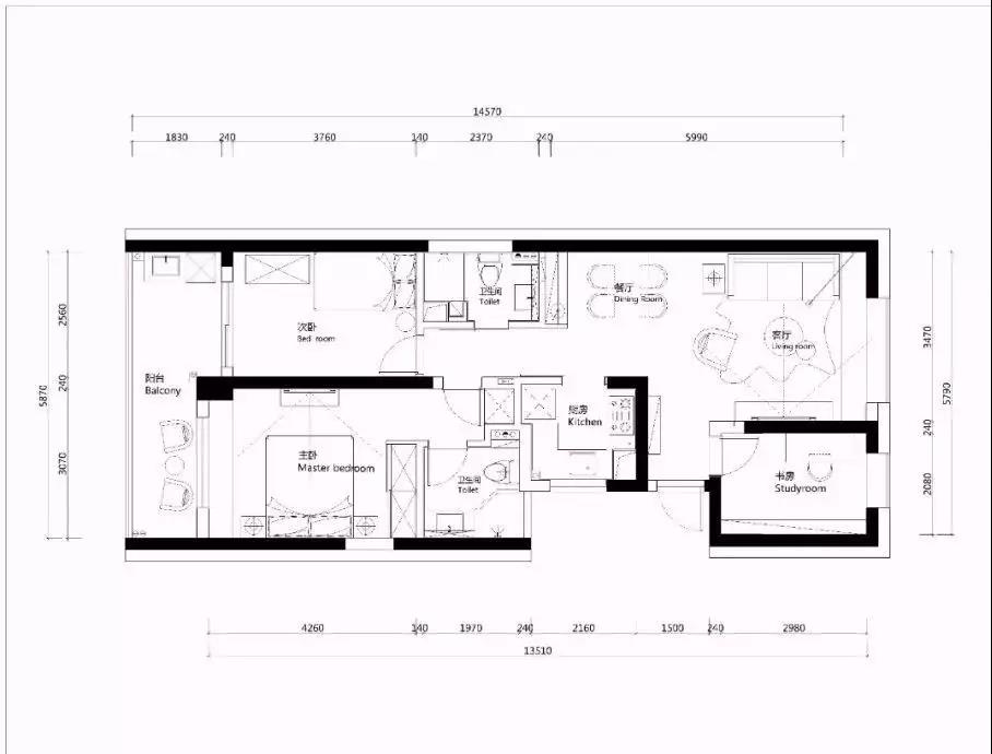
平面布置图

玄关距离短且狭窄,选择了一款体积小颜色轻的成品鞋柜,搭配一张灰色地毯,形成室外进入室内的完美过渡。

整个空间通铺年轮风格的地板,色调年轻,摸上去会有木纹的肌理感,北欧中不乏工业风质感。客厅电视墙选择了留白处理,对于小户型而言,空间适当的留白,可以很好的避免产生局促感。

从客厅角度看餐厅及通往房间的过道,整体格调一致,自然温暖。

客厅靠窗的榻榻米设计,让室内充满休闲的气息。客厅无主灯设计,以轨道灯代替主灯,搭配壁灯、筒灯,看上去更简洁轻盈,灯光也更有层次感。

墙面刷了淡绿色乳胶漆,很清新。工业风的壁灯,灯泡瓦数不高,入夜后氛围很棒。用挂画摆脱无聊墙面。

客餐厅之间无明显 的隔断,水发旁边的边几上放着一盆绿植,即为客餐厅的分隔,也让两个功能区之间形成联系。

简单清爽的原木色餐厅,一旁带水吧功能的餐边柜,加装咖啡机、净水器和自动热水壶等设备,幸福指数大大提升。

餐边柜上面的置物架上是主人收藏的马克杯,整整齐齐,下方设计了隐藏的凹槽灯确保光线。餐厅墙面的圆镜,映出的是厨房的黑框玻璃谷仓门,自成一景。

主卧的床头柜、床靠背和飘窗是一体化设计,配合MUJI无靠背收纳床,整体风格清新简约。

衣橱采用了长虹玻璃搭配黑边金属移门的设计,此外还安装了充电的感应橱柜灯,开门即亮,很人性化。

次卧实在很小,床只能靠墙放置。次卧使用频率不高,设计和布置都以简单为主。

书桌椅来自木智工坊,哑光的原木质地很。开放式赠送的书房很小,加了一面书柜以兼顾收纳和展示的需求。

4平米的厨房设置、收纳一应俱全,橱柜配色与整体风格保持一致,墙砖地砖均选用了灰色水泥砖,沉稳耐脏。

主卫搭配使用了灰色和黑色的水泥砖,风格更加冷静利落。大理石地面中间凸起,四周环绕排水的设计使下水更加高效。干湿分离,易于打理。

客卫面积较小,淋浴房做了三联动的移门,壁龛和镜柜都十分实用。