欢迎访问
红杉树装饰官网 官网
一套建筑面积106平米的现代简约风三居室案例,房子整体以灰色调为主,家具的款式也选择了略带复古风的,让这个家看起来更有格调。屋主在家里的一些地方运用了独特的隐藏式折叠门,让这个家的空间划分变得更为有趣。

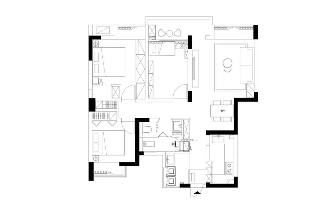
平面布置图

入户玄关和厨房连在一起做了开放式的布局,所以屋主在玄关走廊和客餐厅之间做了这样的隐藏式折叠门,做饭的时候把它关上就没有油烟问题了。

鞋柜也作为半墙隔断实用,厨房内部是U字形的橱柜布局方案,再加上玄关走廊的另一侧还有个迷你阳台空间,整个厨房、玄关使用起来是非常方便的。

餐厅被放在了玄关走廊边上的角落里,大理石的餐桌搭配布艺的椅子,底部加入一些金属元素,让餐厅看起来更精致一些。


客厅的沙发背景墙是刷成了深灰色的,和地面相互呼应。棕色的皮质沙发和这个大理石、金属的茶几,给客厅带来了更为优雅、精致的感觉。

电视背景墙上没有做太复杂的设计,隔板搭配挂画就好。浅灰色的柜子和墙面也起到呼应的效果,在客厅内摆放一些绿植,增添了一些自然感。

主卧室的衣柜被一个步入式衣帽间所代替,灰色调的墙面和黑色的皮质床结合,搭配一些木质家具,让卧室看起来简洁又时尚。

儿童房也是选择了刷成了浅灰色,在软装的搭配上用了一些跳跃的色彩,书架和矮柜的设计方便孩子拿取自己想要的东西,可以养成整理的习惯。

卫生间内做了三式分离的设计,把洗手台、淋浴房和马桶分隔在不同的空间,这些独特的隔断门也让卫生间显得更为有趣一些。