欢迎访问
红杉树装饰官网 官网
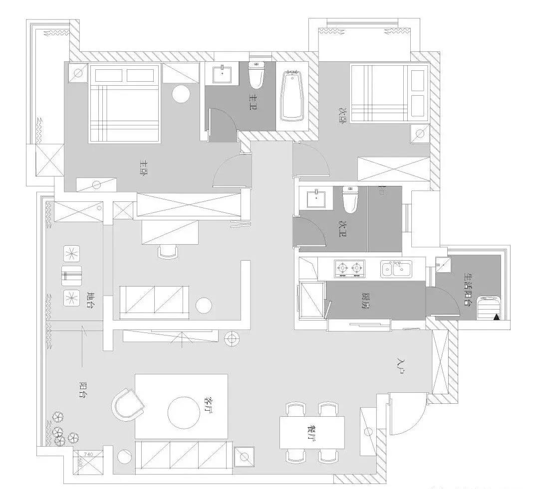
这是一套北欧风格的装修案例,原休闲阳台较大,但对于屋主两人来说利用率不高,希望有一个好的设计既可以充分利用增加储物,又能实现女主人的植物乐园梦。希望这套装修案例能给大家带来一些灵感。


▲ 帕莎诺瓦红墙纸与烟灰色墙纸的结合,沿袭客餐厅空间的轨迹,革新生活的定义。

▲ 如果说温柔甜蜜是这个家的自然属性,那捎带烈焰的帕莎诺瓦红便是这个家的独特属性。

▲ 餐厅的帕莎诺瓦红,让醒来的每一餐,都汇集着甜蜜与惊艳。

▲ 连通阳台后的客厅,更大限度的纳入室外的自然之景,更显空间开阔豁达。

▲ 客厅以烟灰色为空间主色调,铺垫优雅沉静的氛围。

▲ 摒弃原繁锁浮华的电视墙凹凸背景,换以简单优雅的色彩、家居装饰来表达生活态度。

▲ 黑色皮质沙发质感满满,配以朴实的地毯和温润的木质家具,使空间沉静而不失温度。

▲ 通过用体量化的空间块体来划分功能布局,以榻榻米地台的形式充分利用狭长的阳台空间,贯通客餐厅和书房。

▲ 小而精的书房,与客厅阳台连通,似乎整个家都是流线型的。

▲ 次卧在灰蓝、雅棕等相近色相的组合搭配下,于别致中彰显品位与质感。

▲ 书房通透的玻璃折叠门,让过道开阔了起来。

▲床尾的斗柜兼具收纳与展示的功能,小情调满满。

▲ 烟灰色的墙纸贯穿至主卧,搭配巧妙的木地板上墙设计,浑然一体。

▲ 其间点缀的挂画、台灯便是空间跳脱常规的所在。