欢迎访问 红杉树装饰官网 官网
一分钟了解装修
家装知识
在建工地
咨询热线: 19926530442
点击报价
首页
臻品套餐
别墅奢品
旧房改造
精品软装
家装案例
精品案例
VR案例
设计团队
装修直通车
优惠资讯
家装攻略
选材知识
智能报价
在建工地
关于我们
联系我们
首页
>
家装案例
>
精品案例
简约森系风,个性舒适的空间
发布时间:2019-07-19 11:29:18 查看人数:2460 分享到:
提交手机号
上一篇:
长江府330平古典轻奢风
下一篇:
现代简约风格·无处不在的精致
相关风格推荐
法式复古·温柔家|全案设计
奶油轻法式|全案设计
原木极简·松弛感居所全案设计
89平侘寂奶油风设计
案例信息
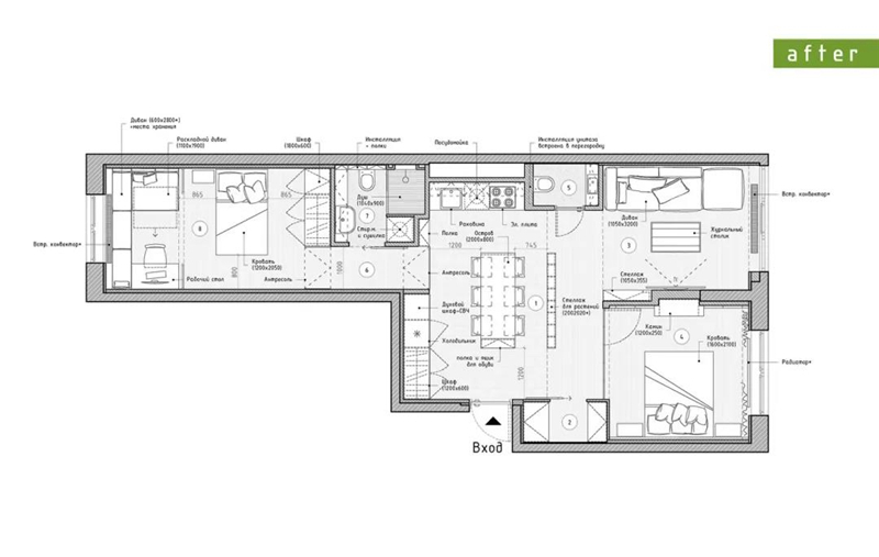
案例面积:
98㎡
案例户型:
二居室
所在楼盘:
盛景天地
案例风格:
现代简约
案例设计师
查看TA的主页
已有
20
人预约TA
在线咨询
免费申请设计
家装案例推荐
查看更多
【红杉树装饰】130㎡简约风格,打造温暖舒适的居家空间
查看详情
【红杉树装饰】115㎡现代简约三房,活泼文艺的配色,令人轻松自然
查看详情
【红杉树装饰】朋友家装修的110平米现代风格,美呆了
查看详情
【红杉树装饰】时代广场160m²轻奢风
查看详情
案例信息
案例面积:
98㎡
案例户型:
二居室
所在楼盘:
盛景天地
案例风格:
现代简约
案例设计师
查看TA的主页
已有
20
人预约TA
在线咨询
免费申请设计
官方微信
扫码关注,领取装修设计案例
报价
1室
2室
3室
4室
5室
1厅
2厅
3厅
1厨
2厨
3厨
1卫生间
2卫生间
3卫生间
1阳台
2阳台
3阳台